建物価格
1936万円(税込)
1760万円
176万円
- メーカーJIBUN HAUS.株式会社
- 建物ID010 ー 710A-A-スタンダード(長手側玄関)
建物本体価格以外にかかる費用については、仲介手数料、登記費用・登録免許税、住宅ローン抵当権設定登記、契約書の収入印紙代、固定資産税等分担金、不動産取得税、各種保険などの費用が必要となります。新築住宅の場合は水道負担金・建築確認申請費用・長期優良住宅申請費用等が必要になる場合があります。また、別途、家財道具の購入費や引越し費用も必要になります。正確な計算が必要な場合は、お気軽に住宅会社にお問い合わせください。
建物 INFORMATION
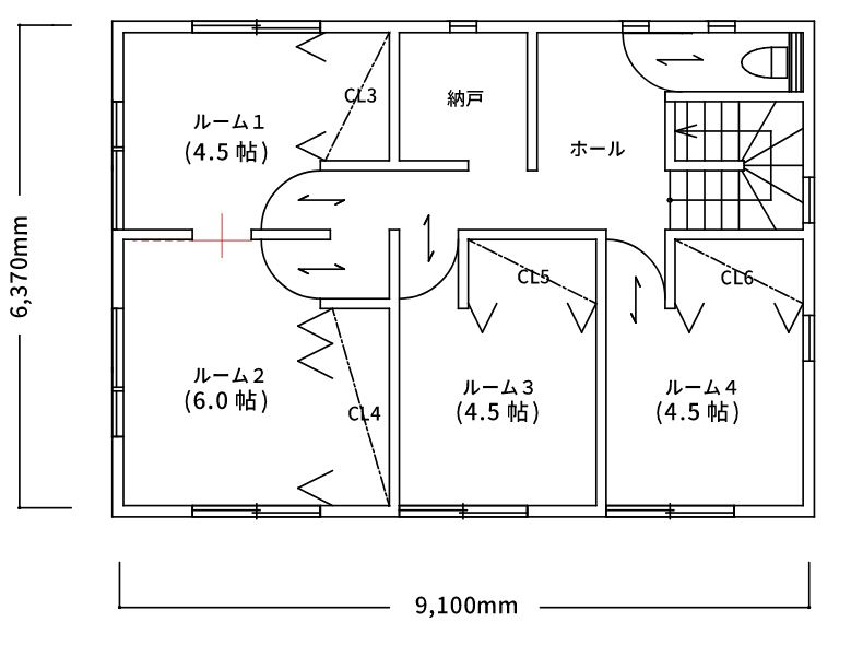
| 建物 基本情報 | 延べ床面積34.81坪の広々とした作りに、出っこみ引っ込みない長方形にまとまった、和室付きLDKです。1階はリビング・ダイニングと繋がる和室コーナーでのんびりと過ごせます。2階は子どもの成長や用途に合わせて、間仕切りを変更して、4部屋を3部屋に変えられる流動的なプランニングが魅力。オプションで選べる、シュークローゼットから階段へ直接上がるサブ動線も便利です。 平面面積(建築面積):57.96 ㎡ |
|---|---|
| 図面 (間取り図) | |
| 内覧 | |
| おすすめ ポイント |
|
仕様・特徴
| 情報更新日 | 2024年01月31日 |
|---|
物件情報を
ダウンロード
ダウンロード

